Woodel Barn 6 метров с крыльцом

Внимание Режим работы в майские праздники!

9, 10, 11 мая - выходные.

Woodel Barn 6 метров с крыльцом
Woodel Barn 6 метров с крыльцом
Woodel Barn 6 метров с крыльцом
Woodel Barn 6 метров с крыльцом
Woodel Barn 6 метров с крыльцом
от 614 000 ₽
Площадь:
9 м²
Внешние размеры (ДxШ):
6x2,3 м
Утепление стен:
100 мм
Утепление пола и потолка:
100 мм
Высота потолка:
2,00-2,20 м
Доставка и монтаж по России
Производим полностью готовое изделие в цеху в Челябинске, доставляем на тралах, выполняем монтаж

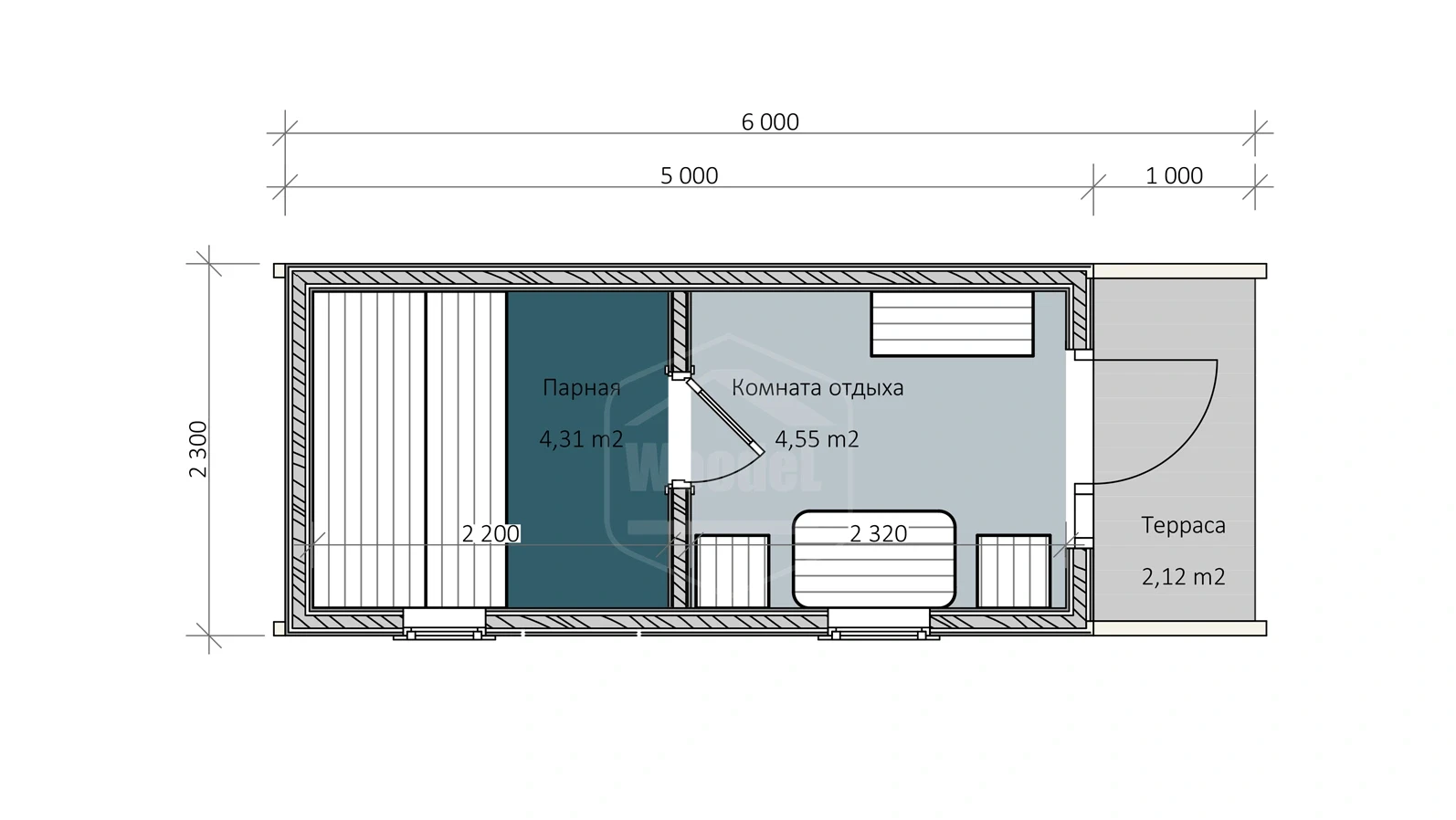
Модульная баня Woodel Barn площадью 13,8 м² (с учетом крыльца) - это сочетание современного дизайна и практичности. Особенностью модели является наличие встроенного крыльца, которое не только придает строению архитектурную завершенность, но и защищает входную дверь от дождя и снега, создавая комфортную зону при входе.

Баня устанавливается за один день без необходимости возведения капитального фундамента на заранее подготовленную площадку. Благодаря заводской сборке в контролируемых условиях цеха, обеспечивается высокое качество подгонки материалов и исключительная герметичность всей конструкции.

Использование качественного утепления 100 мм и натурального дерева делает эту баню идеальным местом для круглогодичного отдыха. Внутреннее пространство разделено на функциональную парную и зону отдыха, где панорамное окно визуально расширяет пространство и позволяет наслаждаться природой в любую погоду.

Возможно изготовление модульного объекта по индивидуальному проекту

Если Вам не подходит уже готовый проект из нашего каталога, мы можем разработать индивидуальный проект по вашим пожеланиям
Отправляя форму, Вы соглашаетесь с
политикой конфиденциальности

Современная архитектура Barnhouse со встроенным крыльцом на входе. Панорамное остекление фасада наполняет интерьер светом и открывает вид на участок.

Длина 6 метров позволяет выделить место для парной, комнаты отдыха и защищенного входа. Крыльцо служит буферной зоной, сохраняя чистоту и уют внутри бани

Базальтовое утепление 100 мм по всему контуру позволяет комфортно париться в любые морозы. Баня быстро прогревается и долго удерживает мягкий, приятный жар

Изделие производится полностью готовым в цеху в Челябинске и доставляется на трале. Никакой стройки на участке — установка и запуск бани занимают всего один день

Woodel Barn 4,5х7 метров с террасой 2м
Woodel Barn 4,5х7 метров с террасой 2м
Площадь: 18.3 м²
от 1 076 000 ₽
Woodel Barn 6 метров с крыльцом
Woodel Barn 6 метров с крыльцом
Площадь: 9 м²
от 614 000 ₽
Woodel Barn 7 метров с крыльцом
Woodel Barn 7 метров с крыльцом
Площадь: 10.5 м²
от 716 000 ₽
Woodel Barn 6 метров
Woodel Barn 6 метров
Площадь: 10.5 м²
от 674 000 ₽

Доставляем наши объекты по всей России

Наше производство расположено в Челябинске, но работаем мы по всей России. Доставляем готовые модульные дома траллами и производим монтаж на вашем участке менее чем за 7 дней
Смотреть выполненные проекты
Доставляем наши объекты по всей России

Технические особенности

  • Габариты: внешние размеры составляют 6 х 2,3 метра, общая площадь строения 13,8 м².
  • ​Конструкция: силовой каркас из сухой доски с полноценным утеплением стен, пола и кровли 100 мм.
  • ​Входная группа: наличие встроенного крыльца для защиты входной зоны от осадков.
  • ​Остекление: панорамные фасады с использованием энергосберегающих стеклопакетов и закаленного стекла.
  • ​Внутренняя отделка: натуральное дерево хвойных пород (липа или ольха для отделки парной).
  • ​Инженерные системы: заводская установка печного узла, разводка электрики и вывод системы слива.

Посетите нашу выставочную площадку

Адрес площадки:
Челябинск, ул. Индивидуальная д.1
Контакты

Свяжитесь с нами любым удобным способом

Позвонить
Звонок бесплатный
Написать в WhatsApp
Ссылка кликабельна
Написать в Telegram
Ссылка кликабельна
Написать на Email