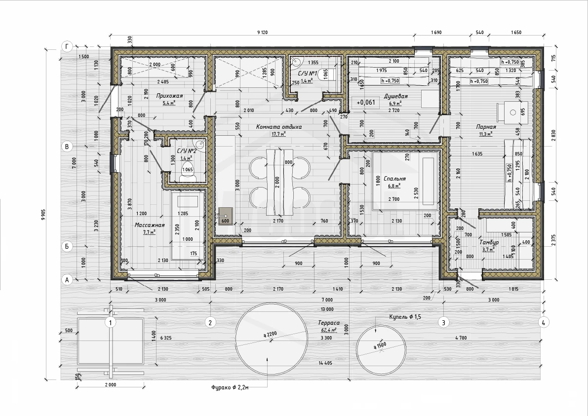
Баня Былина 95

Внимание Режим работы в майские праздники!

9, 10, 11 мая - выходные.

Баня Былина 95
Баня Былина 95
Баня Былина 95
Баня Былина 95
Баня Былина 95
Площадь:
97 м²
Доставка и монтаж по России
Производим полностью готовое изделие в цеху в Челябинске, доставляем на тралах, выполняем монтаж

Модульная баня для коммерческого использования

Баня Былина 95 - это современное модульное решение площадью 97 м² для коммерческого использования. Конструкция разработана специально для гостиниц, баз отдыха, санаториев и других объектов индустрии гостеприимства.

Модульная технология позволяет значительно сократить сроки строительства без потери качества. Готовые секции изготавливаются на производстве с соблюдением всех технологических норм и доставляются на объект для быстрой сборки.

Баня оснащена всем необходимым оборудованием для комфортного использования гостями и рассчитана на интенсивную эксплуатацию в коммерческих целях.

Доставляем наши объекты по всей России

Наше производство расположено в Челябинске, но работаем мы по всей России. Доставляем готовые модульные дома траллами и производим монтаж на вашем участке менее чем за 7 дней
Смотреть выполненные проекты
Доставляем наши объекты по всей России

Посетите нашу выставочную площадку

Адрес площадки:
Челябинск, ул. Индивидуальная д.1

Смотрите также

Баня Былина 100
Баня Былина 100
Площадь: 100.13 м²
Баня Былина 110
Баня Былина 110
Площадь: 104.28 м²
Баня Былина 60
Баня Былина 60
Площадь: 59.1 м²
Баня Былина 95
Баня Былина 95
Площадь: 97 м²
Контакты

Свяжитесь с нами любым удобным способом

Позвонить
Звонок бесплатный
Написать в WhatsApp
Ссылка кликабельна
Написать в Telegram
Ссылка кликабельна
Написать на Email