Woodel Box 4,5х6 метров

Внимание Режим работы в майские праздники!

9, 10, 11 мая - выходные.

Woodel Box 4,5х6 метров
Woodel Box 4,5х6 метров
Woodel Box 4,5х6 метров
Woodel Box 4,5х6 метров
Woodel Box 4,5х6 метров
от 1 630 000 ₽
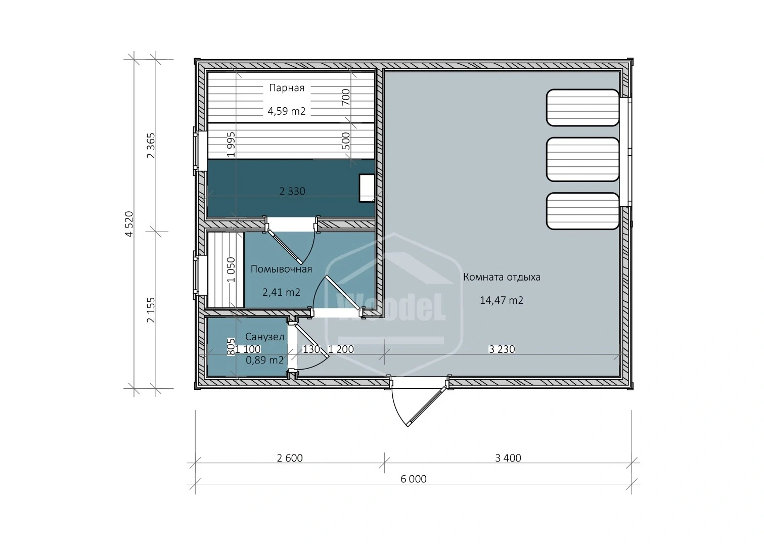
Площадь:
27 м²
Внешние размеры (ДxШ):
4,5х6 м
Утепление стен:
100 мм
Утепление пола и потолка:
100 мм
Высота потолка:
2,00-2,20 м
Доставка и монтаж по России
Производим полностью готовое изделие в цеху в Челябинске, доставляем на тралах, выполняем монтаж

Комплектации и цены

Минимальная цена: 1 630 000 ₽
Комплектации
Фундамент
Стоимость изделия
1 630 000 ₽
Стоимость доставки будет рассчитана после звонка менеджера, для уточнения вашего местоположения
Отправляя форму, Вы соглашаетесь с
политикой конфиденциальности

Модульная баня Woodel Box площадью 27 м² — это флагманская модель серии, созданная для тех, кто не готов на компромиссы в вопросах комфорта. Ширина 4,5 метра в сочетании с шестиметровой длиной превращает баню в полноценный SPA-комплекс, где каждый метр пространства используется максимально эффективно для вашего отдыха.​

Внутренняя планировка поражает объемом и светом: панорамное остекление на широком фасаде визуально объединяет интерьер с окружающим ландшафтом, создавая атмосферу современного загородного отеля. Здесь достаточно места для размещения просторной парной и светлой комнаты отдыха, где можно с комфортом проводить время между заходами в парную.​

Вы получаете полностью готовое изделие прямо с производства в Челябинске. Мы берем на себя все этапы — от монтажа надежной печи до финишной отделки натуральным деревом. Установка на участке занимает минимум времени, а благодаря высокой энергоэффективности конструкции, вы сможете наслаждаться качественным паром в любое время года.​

Возможно изготовление модульного объекта по индивидуальному проекту

Если Вам не подходит уже готовый проект из нашего каталога, мы можем разработать индивидуальный проект по вашим пожеланиям
Отправляя форму, Вы соглашаетесь с
политикой конфиденциальности

Увеличенная площадь 27 м² обеспечивает максимальный простор внутри, позволяя организовать комфортные зоны для отдыха большой семьи или компании.​

Современный кубический дизайн серии Box с широким фасадом и панорамным остеклением делает баню эффектным архитектурным объектом на участке.

Полноценное базальтовое утепление 100 мм по всему контуру гарантирует быстрый прогрев и стабильное удержание жара даже в сильные морозы.

Полная заводская готовность изделия позволяет установить баню под ключ за один день, исключая присутствие строительных бригад и мусор на вашей территории.

Woodel Box 4,5х4 метра
Woodel Box 4,5х4 метра
Площадь: 18 м²
от 1 381 000 ₽
Woodel Box 4,5х5 метров
Woodel Box 4,5х5 метров
Площадь: 22.5 м²
от 1 518 000 ₽
Woodel Box с террасой 4,5х4+1
Woodel Box с террасой 4,5х4+1
Площадь: 18 м²
от 1 374 000 ₽
Woodel Box с террасой 4,5х5+1
Woodel Box с террасой 4,5х5+1
Площадь: 22.5 м²
от 1 077 000 ₽
  • Внешние размеры: 4,5 х 6 метров.​
  • Общая площадь строения: 27 м².​
  • Утепление стен, пола и кровли: минеральная вата 100 мм.​
  • Высота внутренних помещений: от 2,00 до 2,20 метров.​
  • Конструктив: силовой каркас из сухой строганной доски заводской обработки.
  • Остекление: энергосберегающие панорамные окна с использованием закаленного стекла.
  • Инженерное оснащение: заводская разводка электричества, печной узел и система слива воды.

Доставляем наши объекты по всей России

Наше производство расположено в Челябинске, но работаем мы по всей России. Доставляем готовые модульные дома траллами и производим монтаж на вашем участке менее чем за 7 дней
Смотреть выполненные проекты
Доставляем наши объекты по всей России

Посетите нашу выставочную площадку

Адрес площадки:
Челябинск, ул. Индивидуальная д.1
Контакты

Свяжитесь с нами любым удобным способом

Позвонить
Звонок бесплатный
Написать в WhatsApp
Ссылка кликабельна
Написать в Telegram
Ссылка кликабельна
Написать на Email