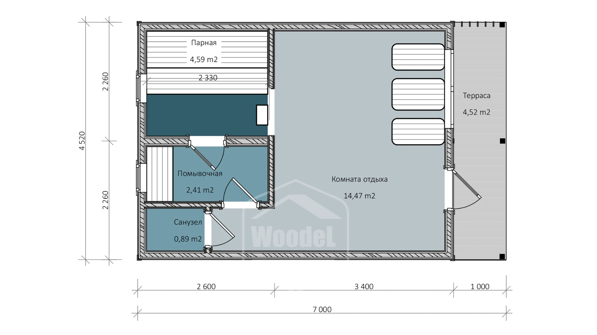
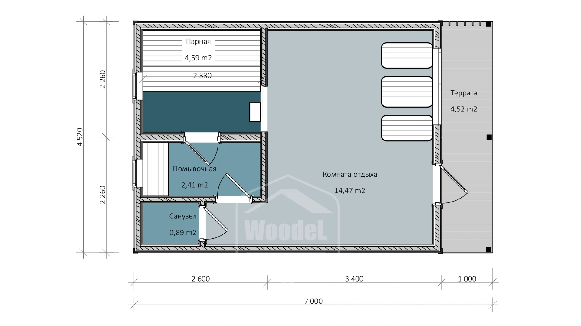
Woodel Heat 4,5х7 метров с террасой

Внимание Режим работы в майские праздники!

9, 10, 11 мая - выходные.

Woodel Heat 4,5х7 метров с террасой
Woodel Heat 4,5х7 метров с террасой
Woodel Heat 4,5х7 метров с террасой
Woodel Heat 4,5х7 метров с террасой
Woodel Heat 4,5х7 метров с террасой
от 1 116 000 ₽
Площадь:
22,4 м²
Внешние размеры (ДxШ):
7x4,5 м
Утепление стен:
100 мм
Утепление пола и потолка:
100 мм
Высота потолка:
2,2-2 м
Площадь террасы:
4,5 м²
Доставка и монтаж по России
Производим полностью готовое изделие в цеху в Челябинске, доставляем на тралах, выполняем монтаж
Контакты

Свяжитесь с нами любым удобным способом

Позвонить
Звонок бесплатный
Написать в WhatsApp
Ссылка кликабельна
Написать в Telegram
Ссылка кликабельна
Написать на Email