Woodel Heat 4,5х6 метров с террасой

Внимание Режим работы в майские праздники!

9, 10, 11 мая - выходные.

Woodel Heat 4,5х6 метров с террасой
Woodel Heat 4,5х6 метров с террасой
Woodel Heat 4,5х6 метров с террасой
Woodel Heat 4,5х6 метров с террасой
Woodel Heat 4,5х6 метров с террасой
от 1 017 000 ₽
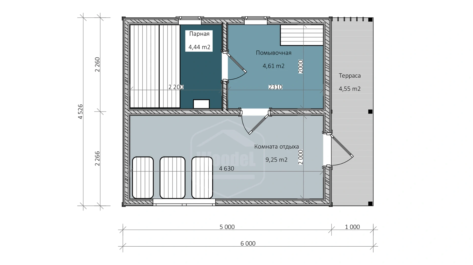
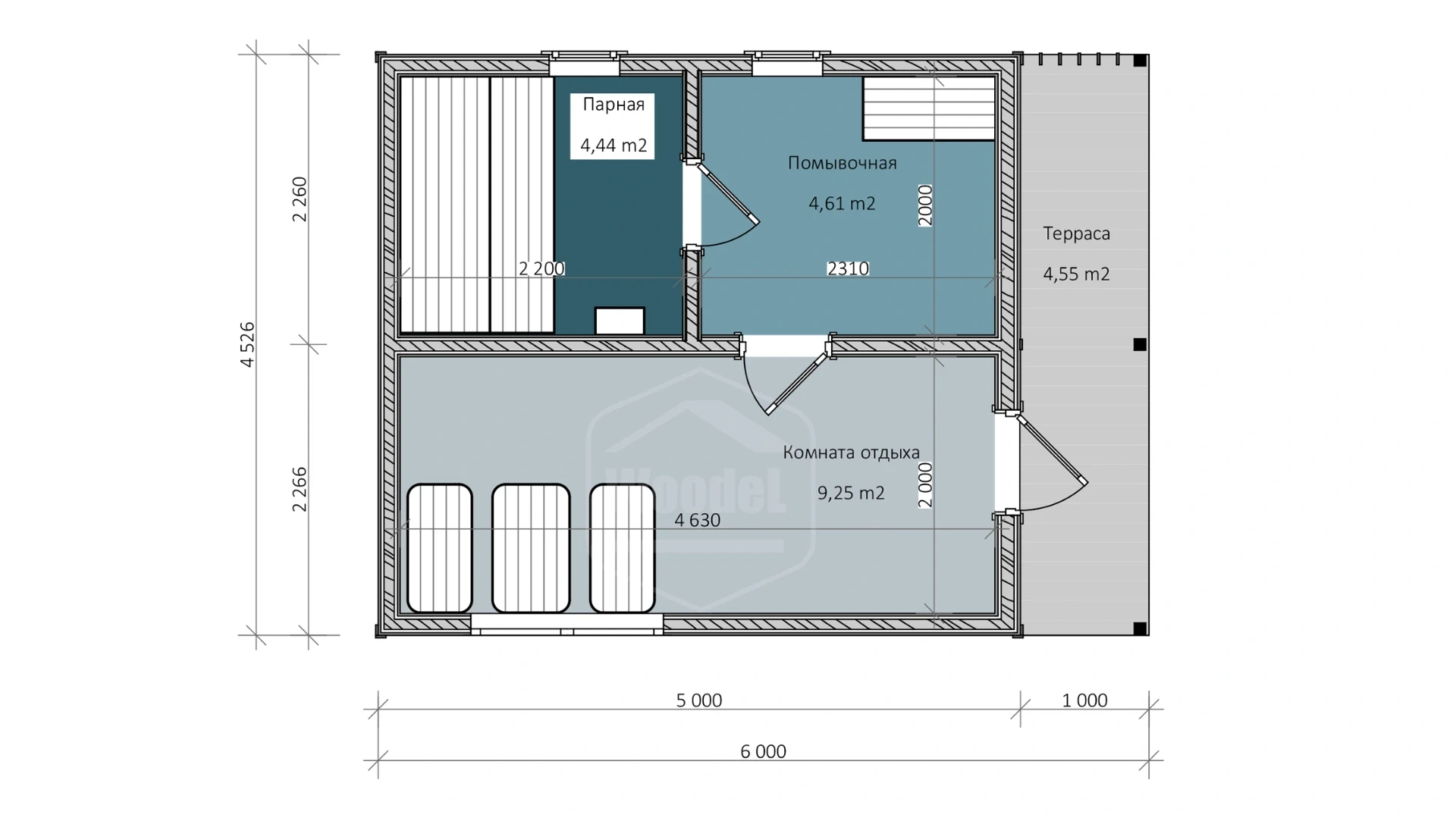
Площадь:
18,3 м²
Внешние размеры (ДxШ):
6x4,5 м
Утепление стен:
100 мм
Утепление пола и потолка:
100 мм
Высота потолка:
2,2-2 м
Площадь террасы:
4,5 м²
Доставка и монтаж по России
Производим полностью готовое изделие в цеху в Челябинске, доставляем на тралах, выполняем монтаж

Баня HEAT 4.5x6: Идеальный баланс стиля, комфорта и функциональности

Вы ищете не просто баню, а идеальное место для перезагрузки души и тела? Место, где современный дизайн встречается с вековыми традициями, а комфорт продуман до мелочей. Вам не нужны компромиссы тесных парилок, но и строить огромный комплекс нет желания.

Баня Woodel HEAT 4.5x6 — это ваша золотая середина. Мы взяли самую популярную и функциональную планировку, добавили просторную террасу и “оживили” ее панорамным окном в парной. Это готовое SPA-пространство, которое станет центром притяжения на вашем участке.

Видеообзор на баню

Фотогалерея

Эта баня стоит на трех столпах идеального отдыха, каждый из которых выполняет свою функцию.

1. Просторная крытая терраса. Это не просто крыльцо, а полноценная лаунж-зона площадью 9 м². Здесь можно поставить уютные кресла или небольшой стол. Представьте: после жаркой парной вы выходите на свежий воздух с чашкой травяного чая, любуетесь своим садом и отдыхаете под защитой от солнца или дождя.

2. Светлая комната отдыха. Сердце вашей бани и место для душевных бесед. Большое окно наполняет ее светом, а площади достаточно для установки дивана, стола и даже небольшой кухонной зоны. Здесь комфортно переодеться, подготовиться к парению и расслабиться после.

3. Парная с панорамным окном. Это визитная карточка серии HEAT! Большое панорамное окно стирает грань между уютным теплом парной и красотой вашего участка. Вы паритесь, наслаждаясь видом на природу, а не на глухую стену. Двухуровневые полки из липы или ольхи позволяют выбрать оптимальную температуру, а мощная печь создает тот самый “легкий пар”.

Доставляем наши объекты по всей России

Наше производство расположено в Челябинске, но работаем мы по всей России. Доставляем готовые модульные дома траллами и производим монтаж на вашем участке менее чем за 7 дней
Смотреть выполненные проекты
Доставляем наши объекты по всей России

Видео о наших строениях

Модульный дом Woodel 30 Barn Pro
Модульный дом Woodel 48 Chalet Pro
Баня с самым большим модулем
Контакты

Свяжитесь с нами любым удобным способом

Позвонить
Звонок бесплатный
Написать в WhatsApp
Ссылка кликабельна
Написать в Telegram
Ссылка кликабельна
Написать на Email